← zurück zur Suche

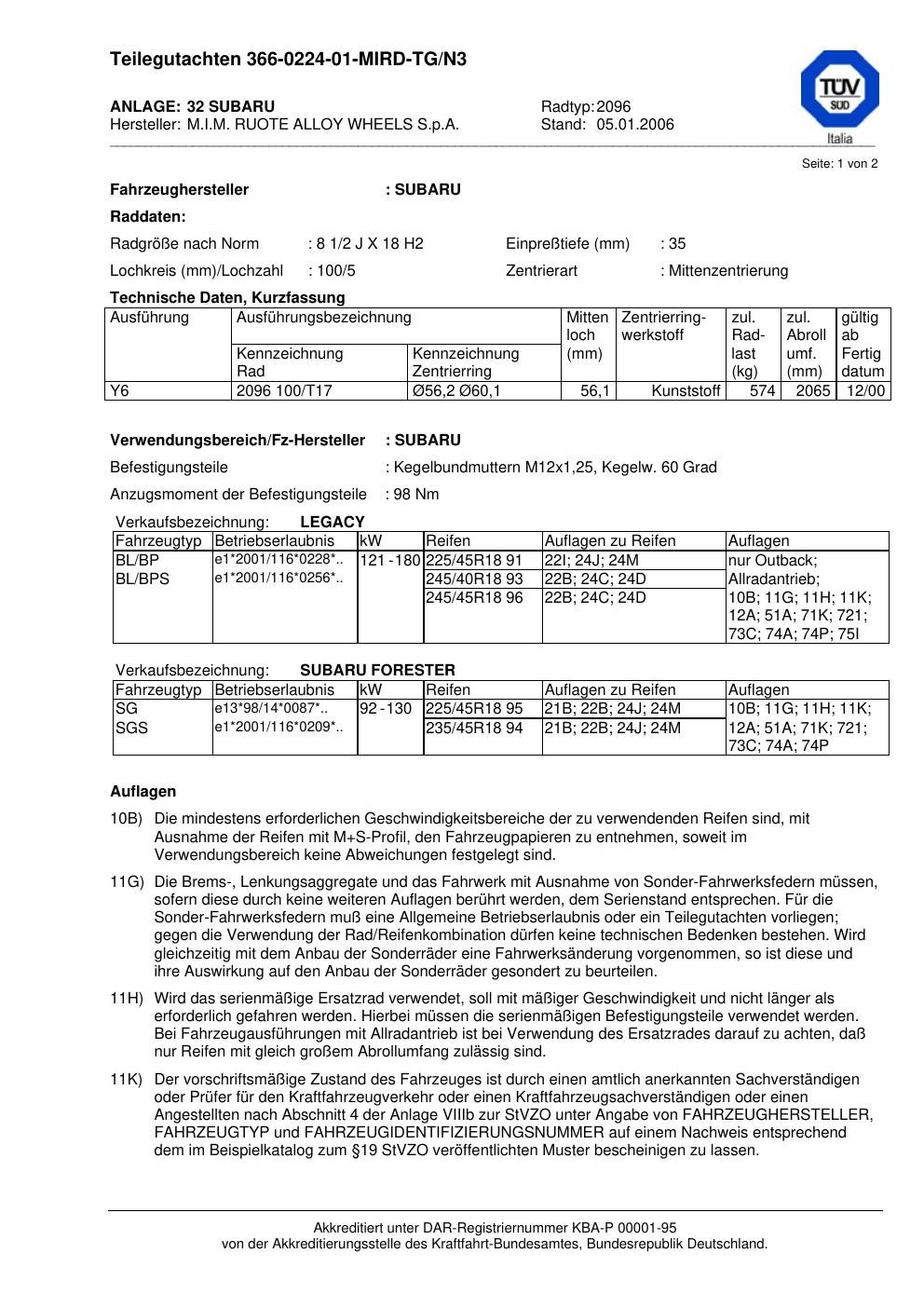
teilegutachten 366-0224-01-mird-tg-n3 MIM 2096

Dieses teilegutachten gehört zur Felge MIM 2096 in ET0 . Die Seite ist dafür gedacht, dass du schnell prüfen kannst, ob KBA, Design und Größe zu deiner Felge passen und danach direkt das richtige PDF lädst.

Auf einen Blick

MIM
2096
0.0J
ET 0.0
ML 0.0 mm
teilegutachten

Kurz erklärt

Dieses Dokument ist vor allem dann hilfreich, wenn du bereits eine konkrete KBA-Nummer, eine bestimmte Felge oder eine bekannte Zollgröße suchst. Prüfe vor dem Download kurz, ob KBA-Nummer, Felgengröße und Design/Serie zu deiner Felge passen.

Vor Download / Montage kurz prüfen

  • Stimmt die KBA-Nummer auf der Felge mit diesem Dokument überein?
  • Passt die angegebene Felgengröße ET0 zu deiner Felge?
  • Prüfe, ob Marke und Serie (MIM 2096) wirklich zur gesuchten Felge passen.
  • Prüfe im PDF den Verwendungsbereich für dein Fahrzeug.
  • Wenn du unsicher bist: erst das PDF prüfen, dann kaufen, montieren oder zur Abnahme gehen.
PDF vorhanden (366-0224-01-mird-tg-n3-teilegutachten-8.pdf)
PDF Vorschau (Seite 1)
Seite 1 direkt sichtbar Desktop: Seiten hier durchschalten Original-PDF weiter nur per Download-Link
Seite 1 von 1
Auf Desktop kannst du die ersten 3 Vorschausseiten direkt hier durchschalten. Beim ersten Klick auf „Weiter“ werden Seite 2 und 3 serverseitig erzeugt.

Kostenlos & ohne E-Mail herunterladen

Starte deinen Download direkt – ohne E-Mail-Adresse. Auf der nächsten Seite kannst du optional freiwillig unterstützen oder den Download gleich kostenlos starten. Der Link ist 24 Stunden gültig und kann maximal 2-mal verwendet werden.

Kein Login · keine E-Mail · optionaler PayPal-Support auf der nächsten Seite

Kostenlos per E-Mail erhalten

Wir senden dir den Download-Link sofort per E-Mail. Bitte prüfe zur Sicherheit auch den Spam-Ordner. Der Link ist 24 Stunden gültig und kann maximal 2-mal verwendet werden.

Datenschutz: Deine E-Mail wird ausschließlich zum Versand des Download-Links verwendet und danach aus unserem System gelöscht. Kein Newsletter, keine Weitergabe.

Dieses teilegutachten der Marke MIM stammt vom jeweiligen Hersteller, Importeur oder einer Prüforganisation. Felgengutachten.de beansprucht hieran keine eigenen Urheber-, Nutzungs- oder sonstigen Schutzrechte. Soweit das Dokument urheber- oder leistungsschutzrechtlich geschützt ist, verbleiben die Rechte beim jeweiligen Rechteinhaber. Die Bereitstellung erfolgt ausschließlich zu Informationszwecken für Endnutzer, z. B. zur Vorlage bei Prüfstellen oder zur eigenen Fahrzeugdokumentation.

Hinweis für Rechteinhaber: Sollte ein Dokument deine Rechte verletzen, melde dich bitte über das Kontaktformular oder das Impressum. Wir prüfen und entfernen betroffene Inhalte bei berechtigtem Hinweis unverzüglich.