← zurück zur Suche

abe KBA 46618 MIM 2630

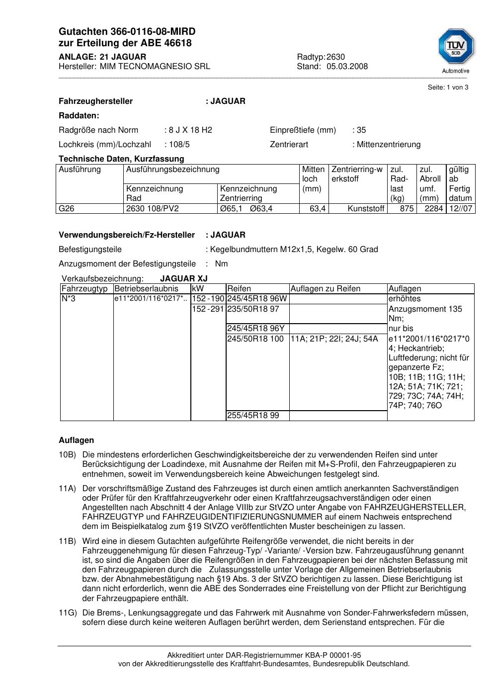
Dieses abe gehört zur Felge MIM 2630 in ET0 mit KBA 46618. Die Seite ist dafür gedacht, dass du schnell prüfen kannst, ob KBA, Design und Größe zu deiner Felge passen und danach direkt das richtige PDF lädst.

Auf einen Blick

MIM
2630
0.0J
ET 0.0
ML 0.0 mm
KBA 46618
abe

Kurz erklärt

Dieses Dokument ist vor allem dann hilfreich, wenn du bereits eine konkrete KBA-Nummer, eine bestimmte Felge oder eine bekannte Zollgröße suchst. Prüfe vor dem Download kurz, ob KBA-Nummer, Felgengröße und Design/Serie zu deiner Felge passen.

Vor Download / Montage kurz prüfen

  • Stimmt die KBA-Nummer auf der Felge mit diesem Dokument überein?
  • Passt die angegebene Felgengröße ET0 zu deiner Felge?
  • Prüfe, ob Marke und Serie (MIM 2630) wirklich zur gesuchten Felge passen.
  • Prüfe im PDF den Verwendungsbereich für dein Fahrzeug.
  • Wenn du unsicher bist: erst das PDF prüfen, dann kaufen, montieren oder zur Abnahme gehen.
PDF vorhanden (46618-abe-27.pdf)
PDF Vorschau (Seite 1)
Seite 1 direkt sichtbar Desktop: Seiten hier durchschalten Original-PDF weiter nur per Download-Link
Seite 1 von 1
Auf Desktop kannst du die ersten 3 Vorschausseiten direkt hier durchschalten. Beim ersten Klick auf „Weiter“ werden Seite 2 und 3 serverseitig erzeugt.

Sofort herunterladen & freiwillig unterstützen

Der Direktweg führt zuerst auf eine kurze Seite zur freiwilligen Unterstützung via PayPal. Danach startet der Download. Der Link ist 24 Stunden gültig und kann maximal 2-mal verwendet werden.

Direktweg · PayPal freiwillig · kein Login · der Download startet nach dem nächsten Schritt

Kostenlos per E-Mail erhalten

Wir senden dir den Download-Link sofort per E-Mail. Bitte prüfe zur Sicherheit auch den Spam-Ordner. Der Link ist 24 Stunden gültig und kann maximal 2-mal verwendet werden.

Datenschutz: Deine E-Mail wird ausschließlich zum Versand des Download-Links verwendet und danach aus unserem System gelöscht. Kein Newsletter, keine Weitergabe.

Ähnliche Gutachten

Diese Varianten sind zum aktuellen Dokument besonders nah. Maßgeblich sind vor allem gleiche KBA-Nummer, gleiche Serie oder eine sehr ähnliche Felgengröße.

Weitere ähnliche Gutachten anzeigen (8)
Tipp: Nutze die Suche (KBA/Hersteller/Serie) oder die Wiki-Artikel oben, wenn du zwischen mehreren Varianten unsicher bist.