← zurück zur Suche

ABE KBA 49248 Momo EUROPE

Dieses ABE gehört zur Felge Momo EUROPE in 7Jx17 ET0 mit KBA 49248. Die Seite ist dafür gedacht, dass du schnell prüfen kannst, ob KBA, Design und Größe zu deiner Felge passen und danach direkt das richtige PDF lädst.

Auf einen Blick

Momo
EUROPE
17"
7.0J
ET 0.0
ML 0.0 mm
KBA 49248
ABE
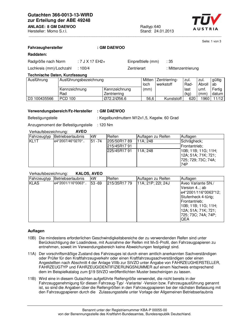
Fahrzeughersteller: DAEWOO

Kurz erklärt

Dieses Dokument ist vor allem dann hilfreich, wenn du bereits eine konkrete KBA-Nummer, eine bestimmte Felge oder eine bekannte Zollgröße suchst. Prüfe vor dem Download kurz, ob KBA-Nummer, Felgengröße und Design/Serie zu deiner Felge passen.

Der Verwendungsbereich umfasst 1 Hersteller und 1 Fahrzeugvarianten. Besonders häufig relevant für DAEWOO.

Vor Download / Montage kurz prüfen

  • Stimmt die KBA-Nummer auf der Felge mit diesem Dokument überein?
  • Passt die angegebene Felgengröße 7Jx17 ET0 zu deiner Felge?
  • Prüfe, ob Marke und Serie (Momo EUROPE) wirklich zur gesuchten Felge passen.
  • Prüfe im Verwendungsbereich, ob dein Fahrzeughersteller dabei ist.
  • Wenn du unsicher bist: erst das PDF prüfen, dann kaufen, montieren oder zur Abnahme gehen.
PDF vorhanden (EUROPE_45289508.pdf)
PDF Vorschau (Seite 1)
Seite 1 direkt sichtbar Desktop: Seiten hier durchschalten Original-PDF weiter nur per Download-Link
Seite 1 von 1
Auf Desktop kannst du die ersten 3 Vorschausseiten direkt hier durchschalten. Beim ersten Klick auf „Weiter“ werden Seite 2 und 3 serverseitig erzeugt.
Herstellerseite: MOMO Wheels

Kostenlos & ohne E-Mail herunterladen

Starte deinen Download direkt – ohne E-Mail-Adresse. Auf der nächsten Seite kannst du optional freiwillig unterstützen oder den Download gleich kostenlos starten. Der Link ist 24 Stunden gültig und kann maximal 2-mal verwendet werden.

Kein Login · keine E-Mail · optionaler PayPal-Support auf der nächsten Seite

Kostenlos per E-Mail erhalten

Wir senden dir den Download-Link sofort per E-Mail. Bitte prüfe zur Sicherheit auch den Spam-Ordner. Der Link ist 24 Stunden gültig und kann maximal 2-mal verwendet werden.

Datenschutz: Deine E-Mail wird ausschließlich zum Versand des Download-Links verwendet und danach aus unserem System gelöscht. Kein Newsletter, keine Weitergabe.

Ähnliche Gutachten

Diese Varianten sind zum aktuellen Dokument besonders nah. Maßgeblich sind vor allem gleiche KBA-Nummer, gleiche Serie oder eine sehr ähnliche Felgengröße.

Momo 640
7.0Jx17 ET0.0 · KBA 49248
gleiche KBA gleiche Marke gleiche Größe andere Fahrzeugfreigabe
Fahrzeugfreigaben: PEUGEOT
Details ansehen
Momo 640
7.0Jx17 ET0.0 · KBA 49248
gleiche KBA gleiche Marke gleiche Größe andere Fahrzeugfreigabe
Fahrzeugfreigaben: BMW, MINI
Details ansehen
Momo 640
7.0Jx17 ET0.0 · KBA 49248
gleiche KBA gleiche Marke gleiche Größe andere Fahrzeugfreigabe
Fahrzeugfreigaben: KIA
Details ansehen
Momo 640
7.0Jx17 ET0.0 · KBA 49248
gleiche KBA gleiche Marke gleiche Größe andere Fahrzeugfreigabe
Fahrzeugfreigaben: NISSAN
Details ansehen
Weitere ähnliche Gutachten anzeigen (8)
Momo 640
7.0Jx17 ET0.0 · KBA 49248
gleiche KBA gleiche Marke gleiche Größe andere Fahrzeugfreigabe
Fahrzeugfreigaben: ROVER
Details ansehen
Momo 640
7.0Jx17 ET0.0 · KBA 49248
gleiche KBA gleiche Marke gleiche Größe andere Fahrzeugfreigabe
Fahrzeugfreigaben: CITROEN, PEUGEOT
Details ansehen
Momo 640
7.0Jx17 ET0.0 · KBA 49248
gleiche KBA gleiche Marke gleiche Größe andere Fahrzeugfreigabe
Fahrzeugfreigaben: MAZDA
Details ansehen
Momo 640
7.0Jx17 ET0.0 · KBA 49248
gleiche KBA gleiche Marke gleiche Größe andere Fahrzeugfreigabe
Fahrzeugfreigaben: VOLVO
Details ansehen
Momo 640
7.0Jx17 ET0.0 · KBA 49248
gleiche KBA gleiche Marke gleiche Größe andere Fahrzeugfreigabe
Fahrzeugfreigaben: CITROEN
Details ansehen
Momo 640
7.0Jx17 ET0.0 · KBA 49248
gleiche KBA gleiche Marke gleiche Größe andere Fahrzeugfreigabe
Fahrzeugfreigaben: FORD
Details ansehen
Momo 640
7.0Jx17 ET0.0 · KBA 49248
gleiche KBA gleiche Marke gleiche Größe andere Fahrzeugfreigabe
Fahrzeugfreigaben: JAGUAR
Details ansehen
Momo 640
7.0Jx17 ET0.0 · KBA 49248
gleiche KBA gleiche Marke gleiche Größe andere Fahrzeugfreigabe
Fahrzeugfreigaben: PEUGEOT
Details ansehen
Tipp: Nutze die Suche (KBA/Hersteller/Serie) oder die Wiki-Artikel oben, wenn du zwischen mehreren Varianten unsicher bist.

Über dieses ABE

Diese Allgemeine Betriebserlaubnis (ABE) bezieht sich auf die Felge Momo EUROPE in der Ausführung 7Jx17 ET0 mit der KBA 49248. Eine ABE ist eine bauartspezifische Genehmigung, die der Hersteller beim Kraftfahrt-Bundesamt (KBA) erwirkt hat. Sie erlaubt die Verwendung der Felge an den im Dokument genannten Fahrzeugen ohne zusätzliche Einzelabnahme, solange sämtliche im Gutachten aufgeführten Auflagen eingehalten werden.

Typische Auflagen reichen von konkreten Reifenkombinationen über Freigängigkeits-Hinweise bis hin zu Vorschriften für Radschrauben, Distanzscheiben oder bestimmte Tieferlegungen. Die vollständigen Auflagen findest du im PDF-Dokument – eine ausführliche Erklärung typischer Codes liest du auch im Wiki-Artikel zu Auflagen im Gutachten.

Montage & Passform

Vor der Montage solltest du folgende technische Angaben mit deiner Fahrzeug-Situation abgleichen:

  • Felgengröße: 7Jx17 ET0 (17 Zoll Durchmesser, 7 Zoll Breite)
  • Einpresstiefe (ET): 0 mm – Die ET entscheidet, wie weit die Felge ins Radhaus oder nach außen steht. Abweichungen vom zugelassenen Bereich können zu Freigängigkeits-Problemen führen.
  • Mittenlochdurchmesser (ML): 0 mm – Ist der ML der Felge größer als die Radnabe, werden in der Regel Zentrierringe benötigt. Mehr dazu im Wiki-Artikel zu Zentrierringen.

Fahrzeug-Freigaben im Detail

Dieses ABE führt 1 Fahrzeugvariante von 1 Fahrzeughersteller als zulässig auf. Abgedeckt werden insbesondere Fahrzeuge von DAEWOO. Prüfe in der folgenden Liste, ob dein konkretes Fahrzeugmodell und – soweit angegeben – der passende Typ-Code (HSN/TSN-Variante) dabei ist. Der Typ-Code steht im Fahrzeugschein unter den Ziffern 2.1 und 2.2 – eine Schritt-für-Schritt-Anleitung dazu findest du im Wiki-Artikel zum Selbst-Prüfen des Gutachtens.

DAEWOO

(ohne Modellangabe)

Die vollständige und rechtsverbindliche Fahrzeugliste mit allen Auflagen und Einschränkungen steht im PDF-Dokument. Nicht jede Fahrzeug-Kombination erlaubt alle Reifengrößen oder Tieferlegungen – die Details entscheiden bei der Abnahme.

Dieses ABE der Marke Momo stammt vom jeweiligen Hersteller, Importeur oder einer Prüforganisation. Felgengutachten.de beansprucht hieran keine eigenen Urheber-, Nutzungs- oder sonstigen Schutzrechte. Soweit das Dokument urheber- oder leistungsschutzrechtlich geschützt ist, verbleiben die Rechte beim jeweiligen Rechteinhaber. Die Bereitstellung erfolgt ausschließlich zu Informationszwecken für Endnutzer, z. B. zur Vorlage bei Prüfstellen oder zur eigenen Fahrzeugdokumentation.

Hinweis für Rechteinhaber: Sollte ein Dokument deine Rechte verletzen, melde dich bitte über das Kontaktformular oder das Impressum. Wir prüfen und entfernen betroffene Inhalte bei berechtigtem Hinweis unverzüglich.