← zurück zur Suche

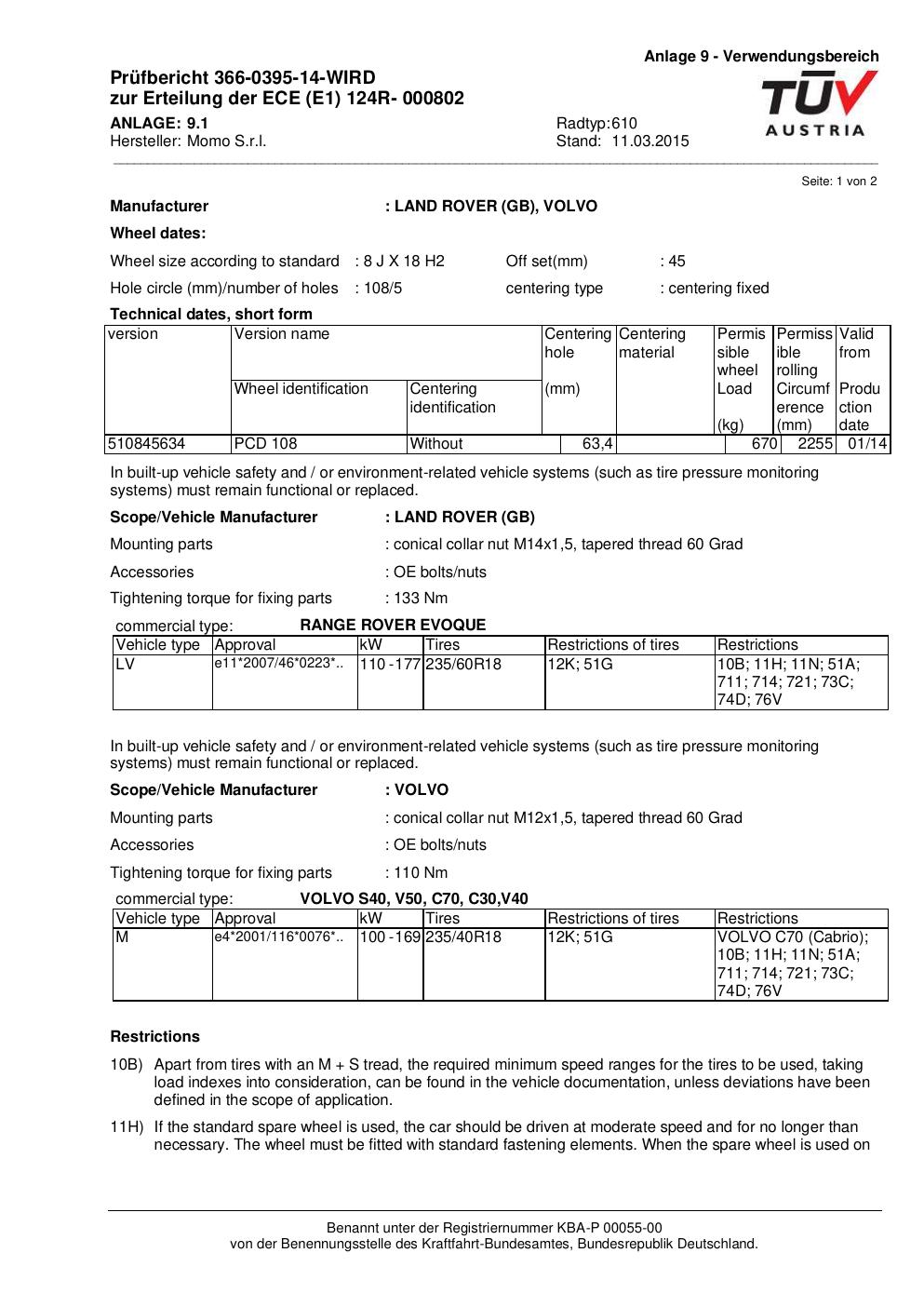
ECE KBA 000802 Momo REVENGE

Dieses ECE gehört zur Felge Momo REVENGE in 8Jx18 ET0 mit KBA 000802. Die Seite ist dafür gedacht, dass du schnell prüfen kannst, ob KBA, Design und Größe zu deiner Felge passen und danach direkt das richtige PDF lädst.

Auf einen Blick

Momo
REVENGE
18"
8.0J
ET 0.0
ML 0.0 mm
KBA 000802
ECE
Fahrzeughersteller: LAND ROVER, VOLVO

Kurz erklärt

Dieses Dokument ist vor allem dann hilfreich, wenn du bereits eine konkrete KBA-Nummer, eine bestimmte Felge oder eine bekannte Zollgröße suchst. Prüfe vor dem Download kurz, ob KBA-Nummer, Felgengröße und Design/Serie zu deiner Felge passen.

Der Verwendungsbereich umfasst 2 Hersteller und 2 Fahrzeugvarianten. Besonders häufig relevant für LAND ROVER, VOLVO.

Vor Download / Montage kurz prüfen

  • Stimmt die KBA-Nummer auf der Felge mit diesem Dokument überein?
  • Passt die angegebene Felgengröße 8Jx18 ET0 zu deiner Felge?
  • Prüfe, ob Marke und Serie (Momo REVENGE) wirklich zur gesuchten Felge passen.
  • Prüfe im Verwendungsbereich, ob dein Fahrzeughersteller dabei ist.
  • Wenn du unsicher bist: erst das PDF prüfen, dann kaufen, montieren oder zur Abnahme gehen.
PDF vorhanden (REVENGE_47937501.pdf)
PDF Vorschau (Seite 1)
Seite 1 direkt sichtbar Desktop: Seiten hier durchschalten Original-PDF weiter nur per Download-Link
Seite 1 von 1
Auf Desktop kannst du die ersten 3 Vorschausseiten direkt hier durchschalten. Beim ersten Klick auf „Weiter“ werden Seite 2 und 3 serverseitig erzeugt.
Herstellerseite: MOMO Wheels

Kostenlos & ohne E-Mail herunterladen

Starte deinen Download direkt – ohne E-Mail-Adresse. Auf der nächsten Seite kannst du optional freiwillig unterstützen oder den Download gleich kostenlos starten. Der Link ist 24 Stunden gültig und kann maximal 2-mal verwendet werden.

Kein Login · keine E-Mail · optionaler PayPal-Support auf der nächsten Seite

Kostenlos per E-Mail erhalten

Wir senden dir den Download-Link sofort per E-Mail. Bitte prüfe zur Sicherheit auch den Spam-Ordner. Der Link ist 24 Stunden gültig und kann maximal 2-mal verwendet werden.

Datenschutz: Deine E-Mail wird ausschließlich zum Versand des Download-Links verwendet und danach aus unserem System gelöscht. Kein Newsletter, keine Weitergabe.

Ähnliche Gutachten

Diese Varianten sind zum aktuellen Dokument besonders nah. Maßgeblich sind vor allem gleiche KBA-Nummer, gleiche Serie oder eine sehr ähnliche Felgengröße.

Momo REVENGE
8.0Jx18 ET0.0 · KBA 000802
gleiche KBA gleiche Serie gleiche Marke gleiche Größe
Fahrzeugfreigaben: BMW
Details ansehen
Momo REVENGE
8.0Jx18 ET0.0 · KBA 000802
gleiche KBA gleiche Serie gleiche Marke gleiche Größe
Fahrzeugfreigaben: BMW
Details ansehen
Momo REVENGE
8.0Jx18 ET0.0 · KBA 000802
gleiche KBA gleiche Serie gleiche Marke gleiche Größe
Fahrzeugfreigaben: BMW
Details ansehen
Momo REVENGE
8.0Jx18 ET0.0 · KBA 000802
gleiche KBA gleiche Serie gleiche Marke gleiche Größe
Fahrzeugfreigaben: GM DAEWOO, GM KOREA, OPEL
Details ansehen
Weitere ähnliche Gutachten anzeigen (4)
Momo REVENGE
8.0Jx18 ET0.0 · KBA 000802
gleiche KBA gleiche Serie gleiche Marke gleiche Größe
Fahrzeugfreigaben: DAIMLER
Details ansehen
Momo REVENGE
8.0Jx18 ET0.0 · KBA 000802
gleiche KBA gleiche Serie gleiche Marke gleiche Größe
Fahrzeugfreigaben: DAIMLER
Details ansehen
Momo REVENGE
8.0Jx18 ET0.0 · KBA 000802
gleiche KBA gleiche Serie gleiche Marke gleiche Größe
Fahrzeugfreigaben: AUDI
Details ansehen
Momo REVENGE
8.0Jx18 ET0.0 · KBA 000802
gleiche KBA gleiche Serie gleiche Marke gleiche Größe
Fahrzeugfreigaben: AUDI
Details ansehen
Tipp: Nutze die Suche (KBA/Hersteller/Serie) oder die Wiki-Artikel oben, wenn du zwischen mehreren Varianten unsicher bist.

Über dieses ECE

Diese ECE-Genehmigung (Regelung Nr. 124 der UN-ECE) gilt für die Felge Momo REVENGE in 8Jx18 ET0 mit der KBA 000802. ECE-R124 ist eine europaweit harmonisierte Genehmigung für Ersatzräder aus Leichtmetall für Pkw. Im Gegensatz zur rein nationalen ABE ist sie grundsätzlich in allen ECE-Mitgliedsstaaten anerkannt.

Auch bei einer ECE-Genehmigung sind die im Dokument genannten Bedingungen und Fahrzeugfreigaben maßgeblich. Eine Eintragung ist in Deutschland in der Regel nicht erforderlich, sofern die Felge genau nach den Vorgaben montiert wird. Details siehe ABE vs. ECE im Wiki.

Montage & Passform

Vor der Montage solltest du folgende technische Angaben mit deiner Fahrzeug-Situation abgleichen:

  • Felgengröße: 8Jx18 ET0 (18 Zoll Durchmesser, 8 Zoll Breite)
  • Einpresstiefe (ET): 0 mm – Die ET entscheidet, wie weit die Felge ins Radhaus oder nach außen steht. Abweichungen vom zugelassenen Bereich können zu Freigängigkeits-Problemen führen.
  • Mittenlochdurchmesser (ML): 0 mm – Ist der ML der Felge größer als die Radnabe, werden in der Regel Zentrierringe benötigt. Mehr dazu im Wiki-Artikel zu Zentrierringen.

Fahrzeug-Freigaben im Detail

Dieses ECE führt 2 Fahrzeugvarianten von 2 Fahrzeugherstellern als zulässig auf. Abgedeckt werden insbesondere Fahrzeuge von LAND ROVER, VOLVO. Prüfe in der folgenden Liste, ob dein konkretes Fahrzeugmodell und – soweit angegeben – der passende Typ-Code (HSN/TSN-Variante) dabei ist. Der Typ-Code steht im Fahrzeugschein unter den Ziffern 2.1 und 2.2 – eine Schritt-für-Schritt-Anleitung dazu findest du im Wiki-Artikel zum Selbst-Prüfen des Gutachtens.

LAND ROVER

(ohne Modellangabe)

VOLVO

(ohne Modellangabe)

Die vollständige und rechtsverbindliche Fahrzeugliste mit allen Auflagen und Einschränkungen steht im PDF-Dokument. Nicht jede Fahrzeug-Kombination erlaubt alle Reifengrößen oder Tieferlegungen – die Details entscheiden bei der Abnahme.

Dieses ECE der Marke Momo stammt vom jeweiligen Hersteller, Importeur oder einer Prüforganisation. Felgengutachten.de beansprucht hieran keine eigenen Urheber-, Nutzungs- oder sonstigen Schutzrechte. Soweit das Dokument urheber- oder leistungsschutzrechtlich geschützt ist, verbleiben die Rechte beim jeweiligen Rechteinhaber. Die Bereitstellung erfolgt ausschließlich zu Informationszwecken für Endnutzer, z. B. zur Vorlage bei Prüfstellen oder zur eigenen Fahrzeugdokumentation.

Hinweis für Rechteinhaber: Sollte ein Dokument deine Rechte verletzen, melde dich bitte über das Kontaktformular oder das Impressum. Wir prüfen und entfernen betroffene Inhalte bei berechtigtem Hinweis unverzüglich.