← zurück zur Suche

teilegutachten au ATS T939 8x18

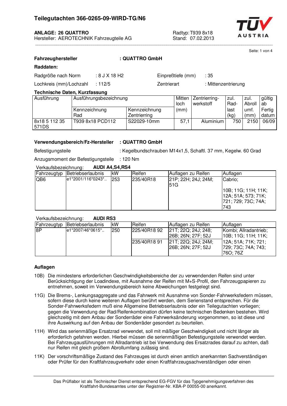
Dieses teilegutachten gehört zur Felge ATS T939 8x18 in 8Jx18 ET0 . Die Seite ist dafür gedacht, dass du schnell prüfen kannst, ob KBA, Design und Größe zu deiner Felge passen und danach direkt das richtige PDF lädst.

Auf einen Blick

ATS
T939 8x18
18"
8.0J
ET 0.0
ML 0.0 mm
teilegutachten
Fahrzeughersteller: AUDI

Kurz erklärt

Dieses Dokument ist vor allem dann hilfreich, wenn du bereits eine konkrete KBA-Nummer, eine bestimmte Felge oder eine bekannte Zollgröße suchst. Prüfe vor dem Download kurz, ob KBA-Nummer, Felgengröße und Design/Serie zu deiner Felge passen.

Der Verwendungsbereich umfasst 1 Hersteller und 1 Fahrzeugvarianten. Besonders häufig relevant für AUDI.

Vor Download / Montage kurz prüfen

  • Stimmt die KBA-Nummer auf der Felge mit diesem Dokument überein?
  • Passt die angegebene Felgengröße 8Jx18 ET0 zu deiner Felge?
  • Prüfe, ob Marke und Serie (ATS T939 8x18) wirklich zur gesuchten Felge passen.
  • Prüfe im Verwendungsbereich, ob dein Fahrzeughersteller dabei ist.
  • Wenn du unsicher bist: erst das PDF prüfen, dann kaufen, montieren oder zur Abnahme gehen.
PDF vorhanden (te-1bff6d1a04-teilegutachten-343.pdf)
PDF Vorschau (Seite 1)
Seite 1 direkt sichtbar Desktop: Seiten hier durchschalten Original-PDF weiter nur per Download-Link
Seite 1 von 1
Auf Desktop kannst du die ersten 3 Vorschausseiten direkt hier durchschalten. Beim ersten Klick auf „Weiter“ werden Seite 2 und 3 serverseitig erzeugt.

Kostenlos & ohne E-Mail herunterladen

Starte deinen Download direkt – ohne E-Mail-Adresse. Auf der nächsten Seite kannst du optional freiwillig unterstützen oder den Download gleich kostenlos starten. Der Link ist 24 Stunden gültig und kann maximal 2-mal verwendet werden.

Kein Login · keine E-Mail · optionaler PayPal-Support auf der nächsten Seite

Kostenlos per E-Mail erhalten

Wir senden dir den Download-Link sofort per E-Mail. Bitte prüfe zur Sicherheit auch den Spam-Ordner. Der Link ist 24 Stunden gültig und kann maximal 2-mal verwendet werden.

Datenschutz: Deine E-Mail wird ausschließlich zum Versand des Download-Links verwendet und danach aus unserem System gelöscht. Kein Newsletter, keine Weitergabe.

Über dieses teilegutachten

Dieses Teilegutachten betrifft die Felge ATS T939 8x18 in 8Jx18 ET0. Ein Teilegutachten nach § 19 StVZO bescheinigt die Vorschriftsmäßigkeit der Felge, ersetzt aber nicht die Einzelabnahme. Nach der Montage ist eine Abnahme durch einen amtlich anerkannten Sachverständigen (z. B. TÜV oder DEKRA) und anschließend eine Eintragung in die Fahrzeugpapiere erforderlich.

Zur Abnahme bringst du in der Regel das Fahrzeug mit montierten Felgen, den Fahrzeugschein, das Teilegutachten als PDF und ggf. Kaufbelege mit. Mehr dazu im Wiki: Felgen eintragen lassen.

Montage & Passform

Vor der Montage solltest du folgende technische Angaben mit deiner Fahrzeug-Situation abgleichen:

  • Felgengröße: 8Jx18 ET0 (18 Zoll Durchmesser, 8 Zoll Breite)
  • Einpresstiefe (ET): 0 mm – Die ET entscheidet, wie weit die Felge ins Radhaus oder nach außen steht. Abweichungen vom zugelassenen Bereich können zu Freigängigkeits-Problemen führen.
  • Mittenlochdurchmesser (ML): 0 mm – Ist der ML der Felge größer als die Radnabe, werden in der Regel Zentrierringe benötigt. Mehr dazu im Wiki-Artikel zu Zentrierringen.

Fahrzeug-Freigaben im Detail

Dieses teilegutachten führt 1 Fahrzeugvariante von 1 Fahrzeughersteller als zulässig auf. Abgedeckt werden insbesondere Fahrzeuge von AUDI. Prüfe in der folgenden Liste, ob dein konkretes Fahrzeugmodell und – soweit angegeben – der passende Typ-Code (HSN/TSN-Variante) dabei ist. Der Typ-Code steht im Fahrzeugschein unter den Ziffern 2.1 und 2.2 – eine Schritt-für-Schritt-Anleitung dazu findest du im Wiki-Artikel zum Selbst-Prüfen des Gutachtens.

AUDI

(ohne Modellangabe)

Die vollständige und rechtsverbindliche Fahrzeugliste mit allen Auflagen und Einschränkungen steht im PDF-Dokument. Nicht jede Fahrzeug-Kombination erlaubt alle Reifengrößen oder Tieferlegungen – die Details entscheiden bei der Abnahme.

Dieses teilegutachten der Marke ATS stammt vom jeweiligen Hersteller, Importeur oder einer Prüforganisation. Felgengutachten.de beansprucht hieran keine eigenen Urheber-, Nutzungs- oder sonstigen Schutzrechte. Soweit das Dokument urheber- oder leistungsschutzrechtlich geschützt ist, verbleiben die Rechte beim jeweiligen Rechteinhaber. Die Bereitstellung erfolgt ausschließlich zu Informationszwecken für Endnutzer, z. B. zur Vorlage bei Prüfstellen oder zur eigenen Fahrzeugdokumentation.

Hinweis für Rechteinhaber: Sollte ein Dokument deine Rechte verletzen, melde dich bitte über das Kontaktformular oder das Impressum. Wir prüfen und entfernen betroffene Inhalte bei berechtigtem Hinweis unverzüglich.